| Адрес | пр.Независимости, 143-2 |
| Район | Первомайский |
| Метро | Восток |
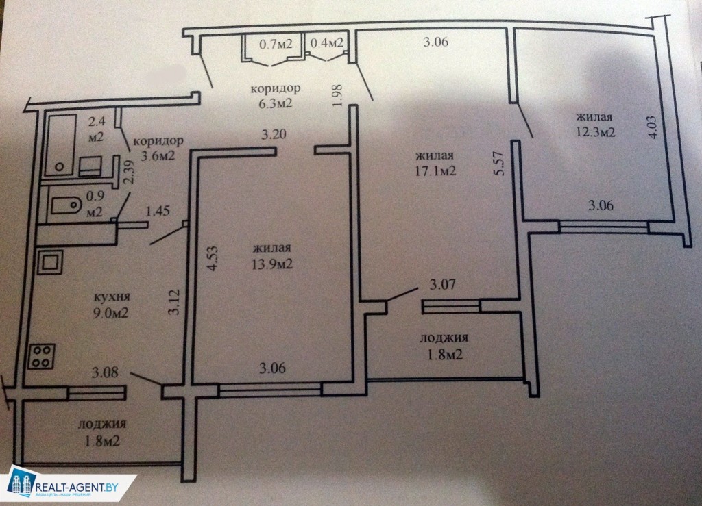
| Количество комнат/изолированных | 3/2 |
| Этаж/этажность | 10/16 |
| Площадь общая/жилая/кухня | 70,2/ 43,3/ 9 |
| Тип дома | Панельный |
| Планировка | Улучшенный проект |
| Год постройки | 1976 |
| Балкон/Лоджия | 2 балкона застекленные + вагонка |
| Полы | ДСП |
| Санузел | Раздельный |
| Условия продажи | Чистая продажа |
| Цена | Успешно продан! |
Микрорайон Восток очень ценят минчане – тут Вам и метро, и хорошая социальная обстановка, и множество зеленых парков и сквериков, и вся инфраструктура в шаговой доступности. Также район известен своей хорошей водой и экологичностью – никаких заводов и промышленных объектов. Автомобилисты оценят район – 3 минуты до МКАД, а на проспект Независимости выехать – 1 минута. В таком районе жить в удовольствие – люди живут приятные, все, что нужно – рядом. Вот и получается, что район – одни плюсы, а квартиры в нем нарасхват.
А теперь подробнее о квартире и доме. Наш дом относится к категории улучшенных проектов. А это значит, что в доме два лифта – грузовой и пассажирский, большие холлы на этажах. А еще планировкой предусмотрена большая 9-ти метровая кухня и две большие лоджии (застеклены), санузел раздельный. Несколько лет назад дом дополнительно утеплили – теперь он выглядит как новостройка.
Квартира солнечная и теплая - окна выходят на юго-запад.
В двух комнатах установлены стеклопакеты, обе лоджии застеклены и обшиты вагонкой.
Для семьи лучше, чем эта квартира – сложно придумать. Судите сами: во дворах 4 (четыре) садика, школа, рядом 11-я гимназия, много магазинов, мини-рынок «Восток», рядом спорт-комплекс «Трудовые резервы», рукой подать до 19-й поликлиники (там же и детская поликлиника). А сколько зеленых сквериков рядом с домом, где можно погулять с коляской!
Море магазинов, банков, кафе, ресторан и многое другое прямо у дома!
Дом обслуживается кооперативом жильцов и содержится в образцовом порядке! Территория у дома и парковка находятся под видеонаблюдением!
И последний по очереди, но не по значению, плюс - до метро Восток (от квартиры до входа) - 2 минуты .
ЗВОНИТЕ прямо сейчас!
