| Адрес | Мстиславца 20 |
| Район | Первомайский |
| Метро | Восток |
| Количество комнат/изолированных | 3 / 3 |
| Этаж/этажность | 2 / 10 |
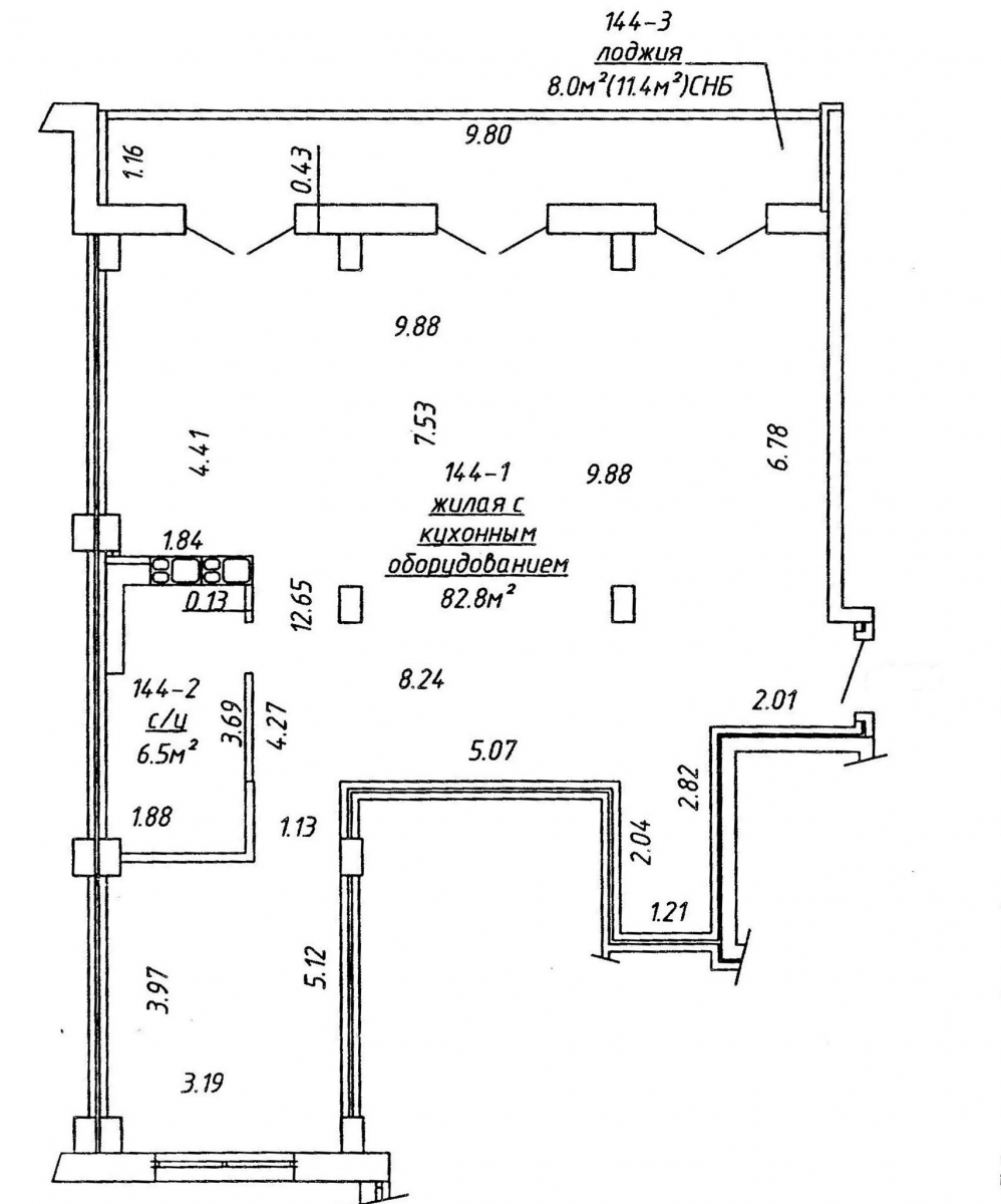
| Площадь общая/жилая/кухня | 97.3 / 63 / 15 м? |
| Тип дома | Каркасно-блочный |
| Планировка | Новостройка |
| Год постройки | 2013 |
| Балкон/Лоджия | Лоджия |
| Санузел | Совмещенный |
| Условия продажи | Чистая продажа |
| Цена | УСПЕШНО ПРОДАН |
Шикарная трёшка в ЖК «МАЯК». Дом сдан! Лучшая планировка
Вы задумывались, что такое многофункциональный комплекс? И почему квартиры в Маяке так активно раскупаются? На самом деле «многофункциональный комплекс» - это не просто пустой звук и не «красивые слова». «Маяк Минска» - это комплекс «все в одном», или город в городе.
В состав комплекса уже на стадии планирования включены и будут построены:
• Собственные детские сады, школы, спортивные площадки, теннисные корты, бассейн, магазины, банки, аптеки, медицинский центр, ледовый каток, аквапарк.
• гипермаркет, бутики с мировыми брендами, СПА-салон и салон красоты, фитнес-центр, центр развлечений и досуга, многозальный кинотеатр, боулинг, бильярд, кафе и рестораны, казино, высококлассный отель.
Сейчас чтобы получить все преимущества такого набора объектов инфраструктуры нужно объехать половину Минска, или, как минимум съездить на авто в несколько отдаленных друг от друга места. В Маяке это все буквально под рукой!
Поэтому, покупая квартиру в «Маяке Минска», Вы приобретаете не абстрактные квадратные метры, а отличные условия жизни для себя и своей семьи!
Подробности: окна выходят на юг и запад, высота потолков 2,7 метра, ближайший от метро «Восток» подъезд – от квартиры до платформы – 3 минуты.
1. За три минуты доходить до станции метро «Восток».
2. Жить самом экологически чистом, зеленом и социально благополучном районе Минска.
3. Пользоваться всеми преимуществами удобной транспортной развязки.
4. Наслаждаться отличным видом из окон.
5. Иметь возможность оставить автомобиль в наземном или подземном паркинге.
6. В конце концов, Вы будете жить в престижном месте, в отличном доме, с представительными соседями! Вы можете посмотреть отзыв новосела, который уже построил квартиру в «Маяке Минска»:
Видео: http://youtu.be/acFGeMlWVdI
НЕ ЭКОНОМЬТЕ на планировке квартиры – покупайте лучшее.
Звоните прямо сейчас! Цена отличная, как и квартира!
