| Адрес | Минск, Боровая 2 |
| Район | Советский |
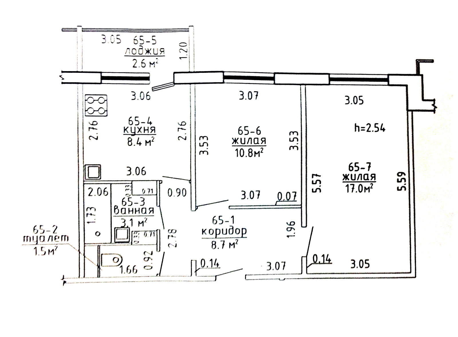
| Количество комнат/изолированных | 2/2 |
| Этаж/этажность | 3/9 |
| Площадь общая/жилая/кухня | 52,1/ 27,8/ 8,4 |
| Тип дома | Панельный |
| Планировка | Новостройка |
| Год постройки | 2014 |
| Балкон/Лоджия | Балкон застекленный |
| Полы | Ламинированые |
| Санузел | Раздельный |
| Условия продажи | Чистая продажа |
| Цена | ПРОДАН |
Прекрасный вариант для тех, кто не хочет тратить деньги, время, силы и нервы на ремонт.
Месторасположение.
Дом фактически расположен в Минске, через кольцевую параллельно ул. Тикоцкого, хотя юридически считается д. Боровая, д. 2.
От дома есть пешеходный путь к ул. Тикоцкого, через подземный переход под МКАД.
600 метров до садика №361. Там же рядом есть сады №383 и №341, а также школа №13.
Общественный транспорт ходит по Тикоцкого, также можно пройти в сторону продолжения Логойского тракта около 800 метров.
Во дворе дома планируется открытие продуктового магазина. Также в 600 метра от дома есть магазин на каждый день, называется «Ближний», чуть дальше магазин «Златка». Рядом гипер Bigzz.
Обратите внимание на снимки со спутника, наш дом, по сути, окружен сосновым лесом. Это мечта для многих минчан, уставших от царства бетона и асфальта.
Квартира.
Центральный подъезд дома, что обеспечивает сохранность тепла и дополнительную защиту от ветра.
У нас третий этаж, с выходом окон в сторону лесного массива. Солнечная сторона, на юго-восток.
В квартире сделан хороший косметический ремонт – вы можете сразу заселиться с минимальными трудозатратами.
Дом.
Дом строился для сотрудников МВД, и видимо, поэтому прилегающая территория и места общего пользования содержатся в образцовом порядке.
Т. к. дом сдан в 2014 году и уже заселен, вас не будут беспокоить строительные шумы, т.к. ремонты уже завершились.
Вы можете купить отличную новостройку с ремонтом в сосновом лесу по цене старой девятиэтажки или брежневки в спальном районе. Это отличное предложение, приезжайте и убедитесь во всем самостоятельно.
